11,- €/m2/mes.
sledovať ponukuPrenájom kancelárií v biznis centre Galvaniho 100m2 - 300 m2
Ponúkame na prenájom administratívne priestory v biznis centre na Galvaniho ul.
Budova Galvaniho Business Centrum III má pôdorys tvaru T s dvoma vnútornými zelenými átriami. Je rozdelená do troch blokov so samostatnými vstupmi s recepciou (A, B, C) s celkovou prenajímateľnou plochou 20.610,95 m2. Budova zabezpečuje maximálnu variabilitu a flexibilitu prenajatých priestorov. Rozsah a riešenie budovy ponúka možnosť zmeny veľkosti a dispozície prenajatých priestorov bez zmeny adresy. Zo spoločných priestorov na 5. poschodí v stredovom jadre je možný východ na spoločné terasy. Tie slúžia na relax v priebehu pracovnej doby. Pod celým objektom sú interiérové parkovacie státia.
voľné priestory
3. poschodie - 337,39 m2 možnosť rozdeliť na 2 priestory so spoločnými toaletami.
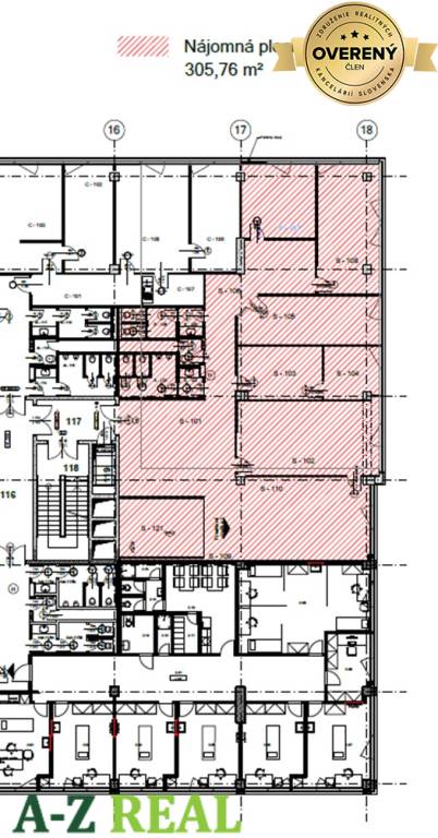
1. poschodie - 305,76 m2, možnosť rozdeliť na 2 priestory so spoločnými toaletami
Základné nájomné podmienky :
Základné nájomné za administratívny priestor orientovaný do dvora 11,00 EUR/m2/mesiac
- spoločné prevádzkové náklady 4,20 EUR/m2/mesiac.
- energie podľa spotreby
- parkovacie miesto vonkajšie: 50,-EUR /1PM/mesiac
- parkovacie miesto vnútorné - garáž: 80,-EUR/1PM/mesiac
- reklama na streche budovy: zdarma
- nosnosť podláh 420kg/m2
Štát: Slovensko
Okres: Bratislava - Ružinov
Mesto: Bratislava - Ružinov
Ulica: Galvaniho
Druh:
Kancelárie
Typ:
prenájom
| Počet poschodí | 5 |
| Celková rozloha | 300 m² |
| Úžitková plocha | 300 m² |
| Výťah | áno |
| Klimatizácia | áno |
| Bezbariérový prístup | áno |
| Rozloha | od 100m² do 300m² |


















