10,83 €/m2/mes.
sledovať ponukuPrenájom kancelárií Šafárikovo námestie, 109m2
Prenájom kancelárskych priestorov v administratívnej budove na Šafárikovom námestí, prístup z átria objektu, výťah, vlastné plynové kúrenie, plávajúce podlahy. Hlavný vstup do objektu je zabezpečený elektronickým vrátnikom s kamerou. Parkovanie je v blízkosti budovy na verejných parkovacích miestach alebo v EUROVEA.
voľné priestory:
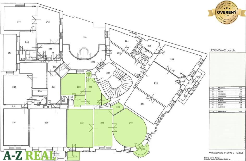
109,2 m2 na 2.poschodí, priestor pozostáva z 3 kancelárií, recepcie, zasadačky, WC a kuchynky, /na pôdoryse označené červeným/
104,8 m2 na 2.poschodí, priestor pozostáva zo 4 kancelárií, WC a kuchynky, /na pôdoryse vyznačené zeleným/
cena prenájmu: 12,83 EUR/m2/mesiac včítane energií
ceny sú uvedené bez DPH
podrobné informácie na www.azreal.sk
Štát: Slovensko
Okres: Bratislava - Staré Mesto
Mesto: Bratislava - Staré Mesto
Ulica: Šafárikovo námestie
Vlastníctvo: firemné
Druh:
Kancelárie
Typ:
prenájom
| Poschodie | 2 |
| Počet poschodí | 4 |
| Počet izieb | 4 |
| Celková rozloha | 109 m² |
| Úžitková plocha | 109 m² |
| Vlastníctvo | firemné |
| Stav | čiastočne prerobený |
| Výťah | áno |
| Parkovanie | verejné |
| Postavené z | tehla |
| Zariadenie | čiastočne |
| Zateplený objekt | nie |
| Energetický certifikát | nie |
| Rozloha | od 109m² do 109m² |




















