10,- €/m2/mes.
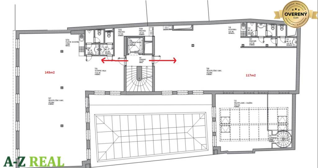
sledovať ponukuPrenájom kancelárií priamo na Hviezdoslavovom nám. 143m2
Prenájom pekných kancelárskych priestorov v absolútnom centre na Hviezdoslavovom námestí. Historický objekt bol kompletne rekonštruovaný v roku 2007, k prenájmu ponúkame samostatné celky s vlastným sociálnym zariadením a kuchynkou, v priestoroch je klimatizácia, štrukturovaná kabeláž, svietidlá, koberce alebo plávajúca podlaha
v budove je výťah, recepčná služba.
Voľné priestory:
143 m2 - 3 presklené kancelárie, open space, kuchynka, 2x sociálne zariadenie, serverovňa, krásny výhľad priamo na námestie
Cena: 10 EUR/m2/mes. + energie 4,8 EUR/m2/mes
na rovnakom poschodí je voľný aj celok
4.poschodie - 117 m2 - open space, jedna kancelária, kuchynský kút, 2x sociálne zariadenie, serverovňa, výhľad do dvora
Cena: 6,- EUR/m2/mes. + energie 4,8 EUR/m2/mes
ceny sú uvedené bez DPH
Štát: Slovensko
Okres: Bratislava - Staré Mesto
Mesto: Bratislava - Staré Mesto
Ulica: Hviezdoslavovo nám.
Vlastníctvo: firemné
Druh:
Kancelárie
Typ:
prenájom
| Poschodie | 4/posledné poschodie |
| Počet poschodí | 5 |
| Počet izieb | 2 |
| Celková rozloha | 143 m² |
| Úžitková plocha | 143 m² |
| Vlastníctvo | firemné |
| Stav | po rekonštrukcii |
| Výťah | áno |
| Parkovanie | verejné |
| Postavené z | tehla |
| Klimatizácia | áno |
| Energetický certifikát | áno |
| Rozloha | od 143m² do 143m² |

























