7,50 €/m2/mes.
sledovať ponukuPrenájom kancelárií na prízemí budovy, Ružinov
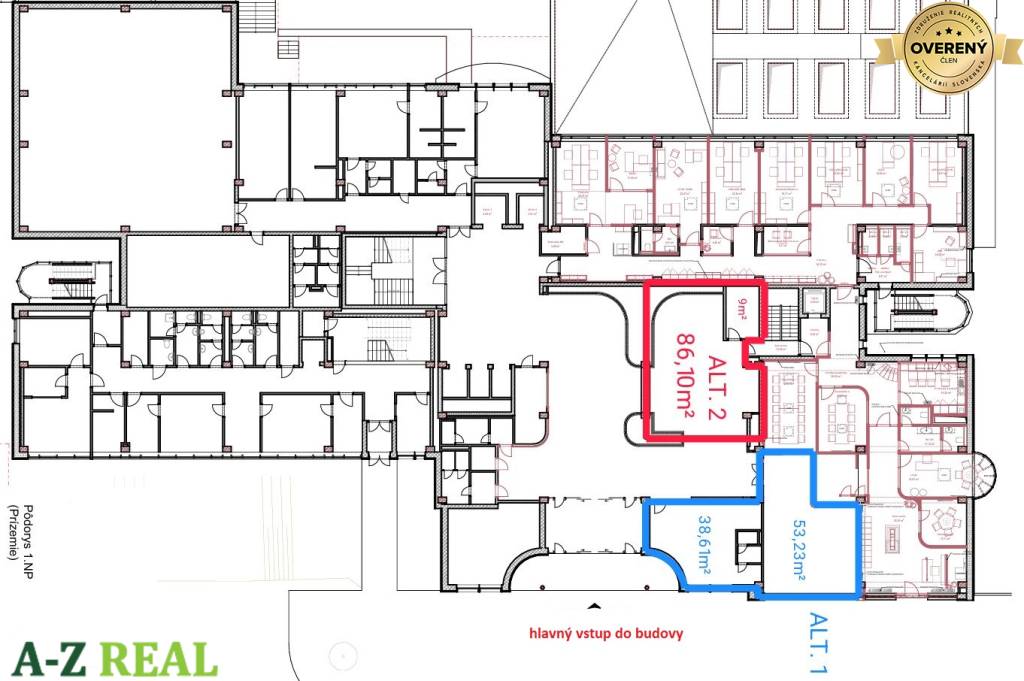
Ponúkame na prenájom obchodno- kancelárske priestory na prízemí administratívnej budovy v širšom centre, v blízkosti biznis zóny Nivy a Prievozskej ulice
K dispozícii sú kancelárie 38 m2 a 53 m2
v suteréne možnosť prenájmu skladu od 20 m2
Cena prenájmu:
nájom administratívne priestory: od 7,50 EUR/m²/mesiac
energie a služby: 4,5 EUR/m²/mesiac /fix
nájom sklad : 4,- EUR/m2/mesiac
parkovacie miesto pred budovou: 90,– EUR/miesto/mesiac
Ceny sú uvedené bez DPH.
Výhody lokality a objektu:
- parkovacie miesta priamo pred budovou
- vyhľadávaná administratívna lokalita v Ružinove
- iba 5 minút od centra mesta
- priame napojenie na diaľničný obchvat
- výborná dostupnosť MHD
- kompletná občianska vybavenosť v okolí
KOMPLETNÚ PONUKU KANCELÁRSKYCH PRIESTOROV NA PRENÁJOM NÁJDETE NA STRÁNKE www.azreal.sk
Štát: Slovensko
Okres: Bratislava - Ružinov
Mesto: Bratislava - Ružinov
Druh:
Kancelárie
Typ:
prenájom
| Poschodie | 2/vyššie poschodie |
| Počet poschodí | 9 |
| Celková rozloha | 600 m² |
| Úžitková plocha | 600 m² |
| Stav | čiastočne prerobený |
| Výťah | áno |
| Parkovanie | vlastné vyhradené |
| Postavené z | iné |
| Klimatizácia | áno |
| Energetický certifikát | nie |
| Rozloha | od 20m² do 600m² |








